Set upon an impressively sized allotment of approx. 520m2 lies this impressive solid brick semi that won't break the bank. Positioned near trains, busses, close to the Lyell McEwin Hospital plus schools and shops aplenty.
This location has so much to offer in the ever changing Elizabeth South and is currently rented out on a periodic lease for $230 per week.
This home has been lavished with beautiful timber floorboards that flow throughout the property alleviating reactions to those whom suffer allergies amongst us. These along with a natural colour scheme complete this little gem.
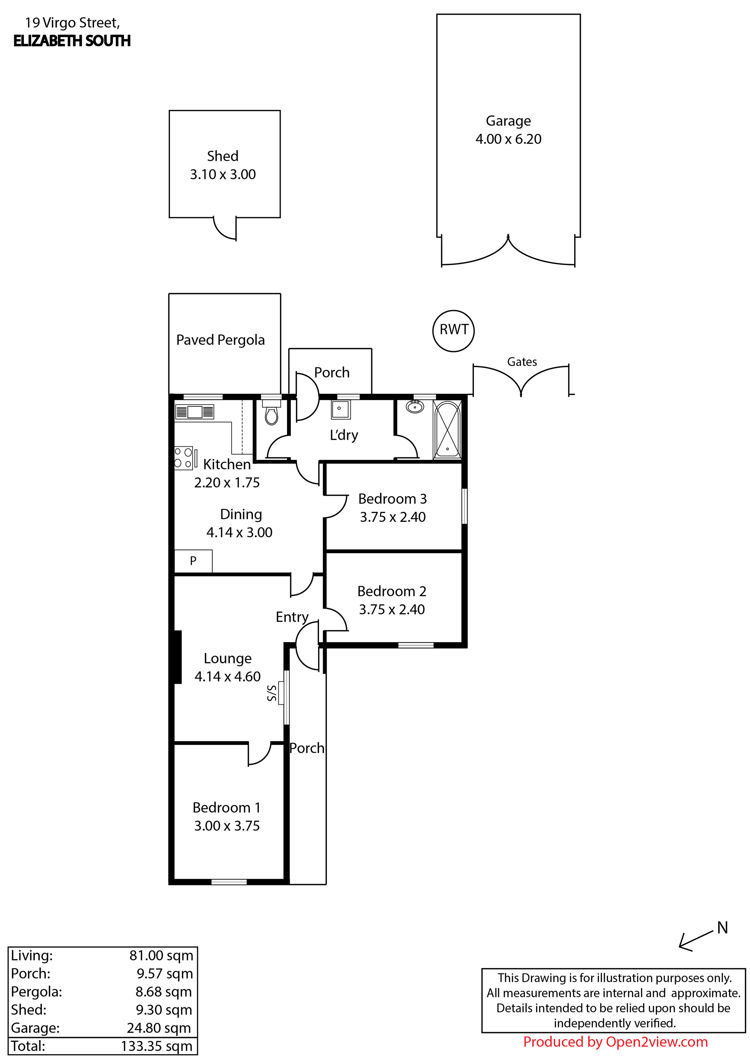
The large kitchen/dine are in great order and the original kitchen will service the family for years to come plus overhead cupboards and a window overlooking the expansive rear garden.
The sizeable lounge has had the fireplace boarded up but may be able to be returned to its original intention. Ample light filters into all facets of the living area creating a warm and inviting atmosphere. A reverse cycle split system A/C will take care of ones comfort all year round.
The master bedroom fronts the road plus roller shutters adorn the front of the home creating much privacy and security. The remaining 2 bedrooms are both sizeable in nature.
The wet areas adorn the rear of the home with a sizeable laundry and separate toilet to alleviate congestion at peak usage times.
The expansive rear garden boasts a 6x4 garage plus a 3x3 shed that may be used as a workshop. The gardens are low maintenance in design plus those ever impressive hills hoist clothesline. A quaint paved pergola area and rear porch are welcomed additions behind high gates. High fences create much privacy in the rear garden.
So to view this little diamond of a property call Andy White on 0413 949 493 today.
CT: 5067/297
Land Size: 520m²
House Size: 86m²
Year Built: 1962
Zone: Residential Regeneration
Council: City of Playford
RLA 232366
| 0413 949 493 | |
| Email Agent | |
| View My Properties |
| Land Size | 520 Square Mtr approx. |
| Building Size | 86 sqm |
| Zoning | |
| Air Conditioning | |
| Heating | |
| Shed | |
| Split System |
REAL Estate Agents Group Adelaide 2025 | Privacy | Marketing by Real Estate Australia and ReNet Real Estate Software